Strona główna
Inwestycje
Kontakt
508 644 253
W sprzedaży
Marsa 24 Nieporęt
Zobacz szczegóły
Budujemy z myślą
o Twojej przyszłości
Poznaj inwestycje, które z przyjemnością
nazwiesz swoim domem
POZNAJ NASZE INWESTYCJE
AKTUALNIE REALIZOWANE
Bieżące
inwestycje
W sprzedaży
Marsa 24 Nieporęt
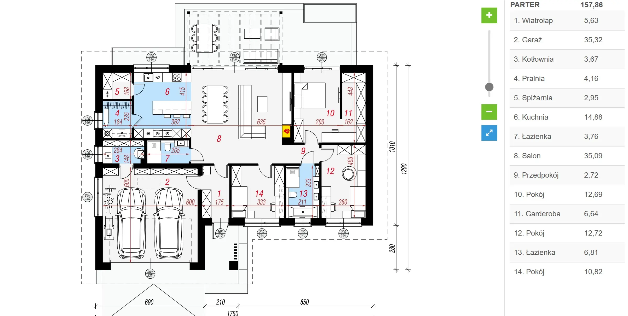
Powierzchnia
157.86m²
Pokoje
5
Lokalizacja
Nieporęt
Zobacz szczegóły →
Budujemy nieruchomości,
w których mieszka komfort,
doskonały styl i poczucie
bezpieczeństwa.
Zobacz zdjęcia naszych realizacji